Каждый мужчина хоть раз в жизни должен посадить дерево, построить дом, и собрать это сранное гримерное зеркало для жены
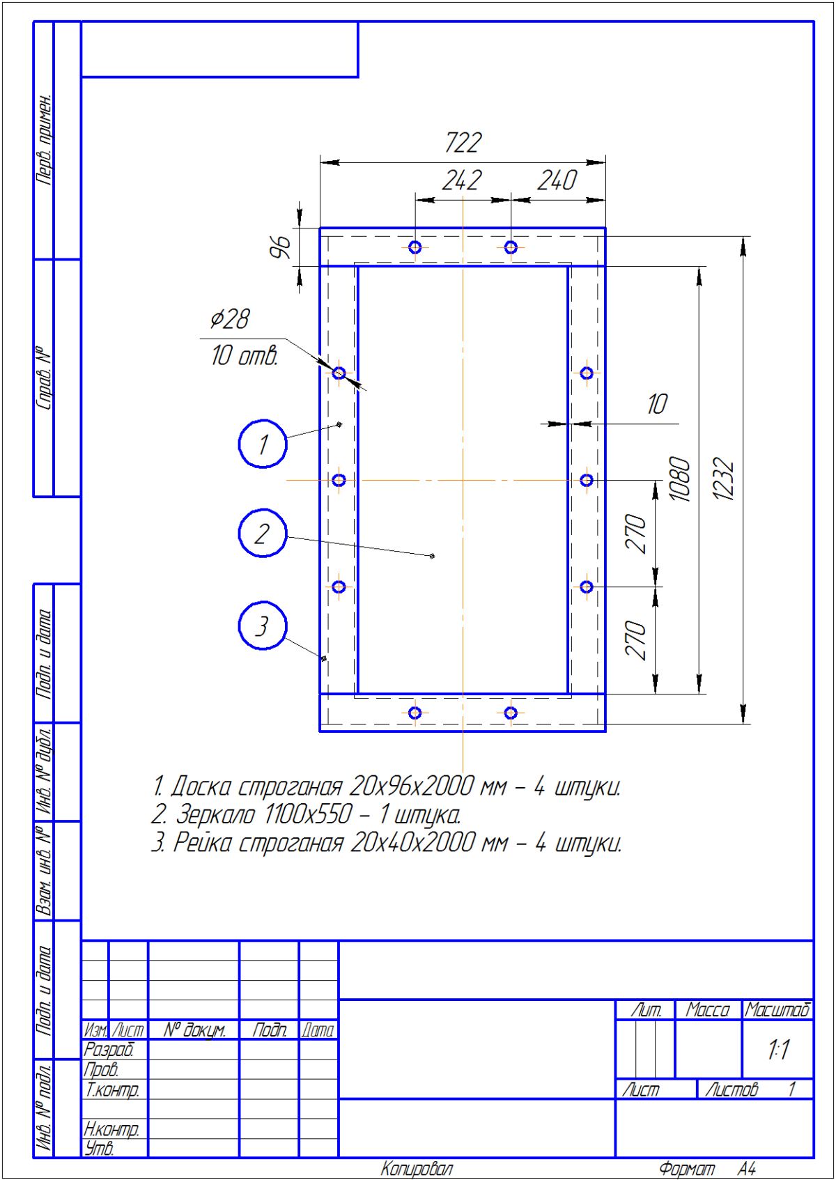
Всем привет, я здесь новичок, и решил оформить свой пост в качестве знакомства с пикабу. Появилась идея "немного" обновить старое советское зеркало в прихожей, тем самым, подарив ему новую жизнь. Немного пораскинув инженерными мозгами, поработав рулеткой и карандашом, решил действовать. Начал с малого - составил чертеж.

Рассчитав необходимые размеры, тут же определился с материалом для будущего "шедевра". Дерево решил брать в Леруа соседнего города. Все остальное заказал на Всеинструменты.ру. Подробный список деталей с ценами и артикулом будет в следующей записи. В этой я решил лишь поделиться идеей будущего проекта и почитать критику.
Ради интереса вспомнил свои навыки 3Д моделирования, и решил немного побаловаться в САПР-е.
Вот что примерно получилось, сильно не кидайтесь тапками, чукча - не художник.






Модель создал для себя, чтобы было более наглядней, и для сверки с реальным изделием. Немного сумбурно, но следующий пост максимально подробно покажет сам процесс сборки, с множеством фото и пояснений. Кто решит ждать - будет в следующем месяце. Всем спасибо.


Комментарии